Navigation überspringen
Home
Dienstleistungen
Unternehmen
Projekte
Kontakt
Navigation überspringen
Menü
Home
Dienstleistungen
Unternehmen
Projekte
Kontakt
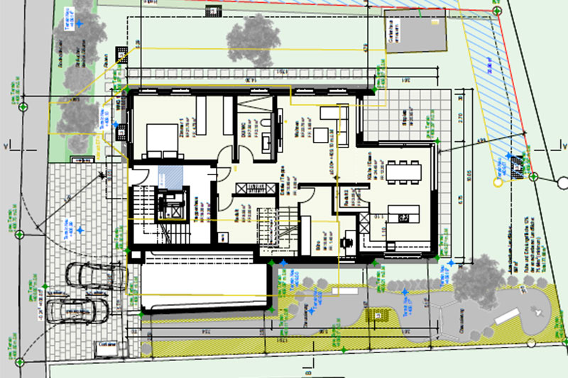
Abbruch+Neubau MFH St. Gallerstrasse
Lachen SZ
Standort:
Lachen SZ
Unsere Tätigkeit
Submissionsarbeiten
Bauleitung
Zurück
Wählen Sie Ihre Datenschutzeinstellungen
Notwendig
Mit dieser Einstellung wird zur korrekten Darstellung der Website Google Fonts geladen.
Analyse
Mit dieser Einstellung werden Google Fonts, Cookies für erweiterte Funktionen, sowie Google Analytics geladen und zugelassen.
Zurück
Mit dieser Einstellung werden Google Fonts, Cookies für erweiterte Funktionen, sowie Google Analytics geladen und zugelassen.
Einstellungen ändern
Datenschutz
Impressum