Livecam Kindergarten Dorf
Navigation überspringen
Home
Dienstleistungen
Unternehmen
Projekte
Kontakt
Navigation überspringen
Menü
Home
Dienstleistungen
Unternehmen
Projekte
Kontakt
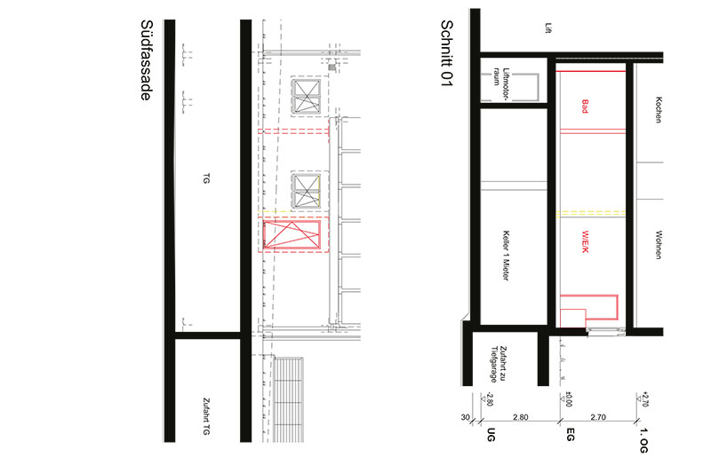
Umnutzung Nebenräume Wohnung
Schäfliwiese Buttikon SZ
Standort:
Buttikon SZ
Unsere Tätigkeit
Vorprojekt
Baueingabe
Planung
Ausführung
Zurück
Wählen Sie Ihre Datenschutzeinstellungen
Notwendig
Mit dieser Einstellung wird zur korrekten Darstellung der Website Google Fonts geladen.
Analyse
Mit dieser Einstellung werden Google Fonts, Cookies für erweiterte Funktionen, sowie Google Analytics geladen und zugelassen.
Zurück
Mit dieser Einstellung werden Google Fonts, Cookies für erweiterte Funktionen, sowie Google Analytics geladen und zugelassen.
Einstellungen ändern
Datenschutz
Impressum